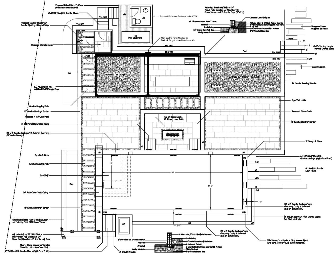
Eliminating the 'Doing it Twice' Tax
Infrastructure is sequenced correctly from day one through our Comprehensive Masterplanning.
This prevents the costly scenario of excavating a newly finished terrace to install utility or drainage lines that were overlooked.









